House Ananta : House of the Hanging Gardens

Client

Mohan Raj, Jeevanadi Estates

Project Detail

House Ananta : House of the Hanging Gardens

Photographer

Ishi Sitawala

+Presentation View

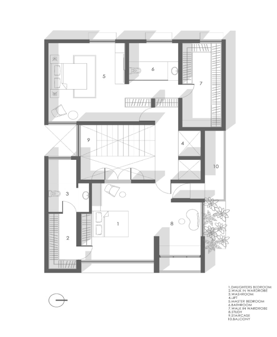
Locked within its vastness and exalting bulk, soft brutalism calls to cubic architecture. This is House Ananta, a mass made of laborious thought and inclusive design. Upon inceptive glances, one cannot help but hold a state of wonder in the face of the cantilevering weight. Every aspect of this home has been created to maximize the interplay between light, forms, and pockets of green, a testament to the progress of garden-friendly residential architecture. As a consequence, the living space exudes both sophistication and serenity. These areas, which take their cues from the soft brutalism school of thought, delicately balance the use of minimal materials that have complimenting aesthetics. An assembly of cubes in organized cantilevers and recesses makes up the elevation of the residence. This give-and-take of exposed concrete, warm teak accents, and lush foliage on the façade creates a captivating dialogue between the built environment and nature. The elevation almost narrates the metaphor of a stretched arm out to the park ahead. The massing is dressed by gardens at every level, adding a shade of green to the built form. These leafy pockets soften the sharp geometry of the building. The volumes are finished in either neo-cement exposed concrete or painted white, with teak-finished fenestrations. The façade calls for its visitors to stand and stare. A moment’s pause before the entrance. A double-height garden, between the home office and the car park area, and a tiny garden niche accommodating a Ganesha idol are the introductory garden pockets on the ground floor. On the first floor, the massing accommodates a sit-out, flowing out with its green edge. This space is canopied under a planter box. A northeast extension in the architectural form creates a room for another planter box, which holds the pooja adding advantages to Vastu. The family room on the second floor opens out to a portion of usable garden space. Finally, the terrace floor is adorned with plants all along its periphery. The house is built on site measuring forty feet wide by sixty feet deep with the amenities of a modern bungalow. The ground floor accommodates the car parks, servants’ quarters, and a home office. An arrangement of a dog-legged staircase and a mechanical lift connects the house vertically. The first floor accommodates the living, dining, kitchen, and guest bedroom. An out-door sit-out connects the formal living to the pockets of green, that constitute the making of the elevation. The three bedrooms with their walk-in wardrobes and attached bathrooms are on the floors above with a separate family room on the second floor and a home theatre with a Jacuzzi opening to the terrace. The garage is kept hidden behind a fortress of concrete and the warmth of wood. Facing the fleet of cars, the home office is trimmed in Rosso Corsa, an ode to the client’s prancing horse. On entry, one is treated to a space that is light, airy, and voluminous. The formal living room spills across the entire width of the eastern wall, seemingly framing the view. The ideology of interior aesthetics demands bold and singular pieces of art and furniture. A pooja room is gated behind a vertically paneled teak double door. A place of worship where a host of shadows are cast for hours on end. The kitchen is designed to be in conversation with the dining room. Open to each other, this space is ideal for intimate gatherings and chatter from within and across the two volumes. Shaded in clean whites and muted grays, the kitchen is styled to have a sober, modern look. The only pops of color are seen in a pair of abstract paintings on the otherwise naked walls. The staircase acts as the mesial to the home, separating public spaces from private ones. Here lays the only exposed concrete wall that roots from the stilt floor and peaks at the terrace. The staircase, too, is contestably art. It’s finished in micro-topped concrete with threads finished in teak. A delicate glass handrail with a gentle teak edge makes the journey up worth the steps climbed. Suspended above a triple-height court, a series of custom-made linear light fittings complement the geometries of the space. Upstairs are the three main bedrooms and an enjoyably plush family room. A deep teak floor, youthful blends of a palette in teal, and an offbeat take on furniture design are what embellish the family room. This space is rooted in Indian modernism, with diwans, lounge chairs, and ottomans. The triple wooden awning windows are handy in maintaining a sense of privacy while allowing for glimpses of a matured Indian coral tree on the eastern front. The older daughter’s bedroom is decorated in subdued shades of gray and copper. The room is softened by suede carpeting and an Alcantara-lined headboard. The younger daughter’s bedroom has been designed with a more feminine frame of mind. Largely white, spots of pink and tinges of plum tie the bedroom together, with bold onyx accents for the headboard and opulent touches of brushed gold throughout. The use of brown tones in teak wood, tan leather, and complementary upholstery helps let the master bedroom’s material palette echo strongly with the warmth it produces. Complimenting marbles have been used for all bathrooms. Further up, a large customized tropical-themed artwork crafted in dyed teak veneers is exhibited under the sky-lit pergola ceiling. The blue sky, the pink feathered flamingo, and the monochrome zebra oddly bring together a space of expansive depth and light. Shadows in motion on the concrete wall reference the passage of time. In the heart of Bengaluru’s action, the cacophony of city life fades into a distant murmur. Here, in House Ananta.

Rectangle 8116 (2)
previous arrow
next arrow

This will close in 0 seconds

Rectangle 8116 (2)
previous arrow
next arrow

This will close in 0 seconds

Rectangle 8116 (2)
previous arrow
next arrow

This will close in 0 seconds

Rectangle 8116 (2)
previous arrow
next arrow

This will close in 0 seconds

Rectangle 8116 (2)
previous arrow
next arrow

This will close in 0 seconds

Rectangle 8116 (2)
previous arrow
next arrow

This will close in 0 seconds

This will close in 0 seconds

This will close in 0 seconds

Rectangle 8116 (2)
previous arrow
next arrow

This will close in 0 seconds

Rectangle 8116 (2)
previous arrow
next arrow

This will close in 0 seconds

Rectangle 8116 (2)
previous arrow
next arrow

This will close in 0 seconds

Rectangle 8116 (2)
previous arrow
next arrow

This will close in 0 seconds